Al Balawy Complex
Location: Al Fahd Street, Riyadh, KSA
Client: Sheikh Mansour Al-Balawy
Area: 5228 m2.
Scope of work: Architecture & Engineering
Full Package Services.
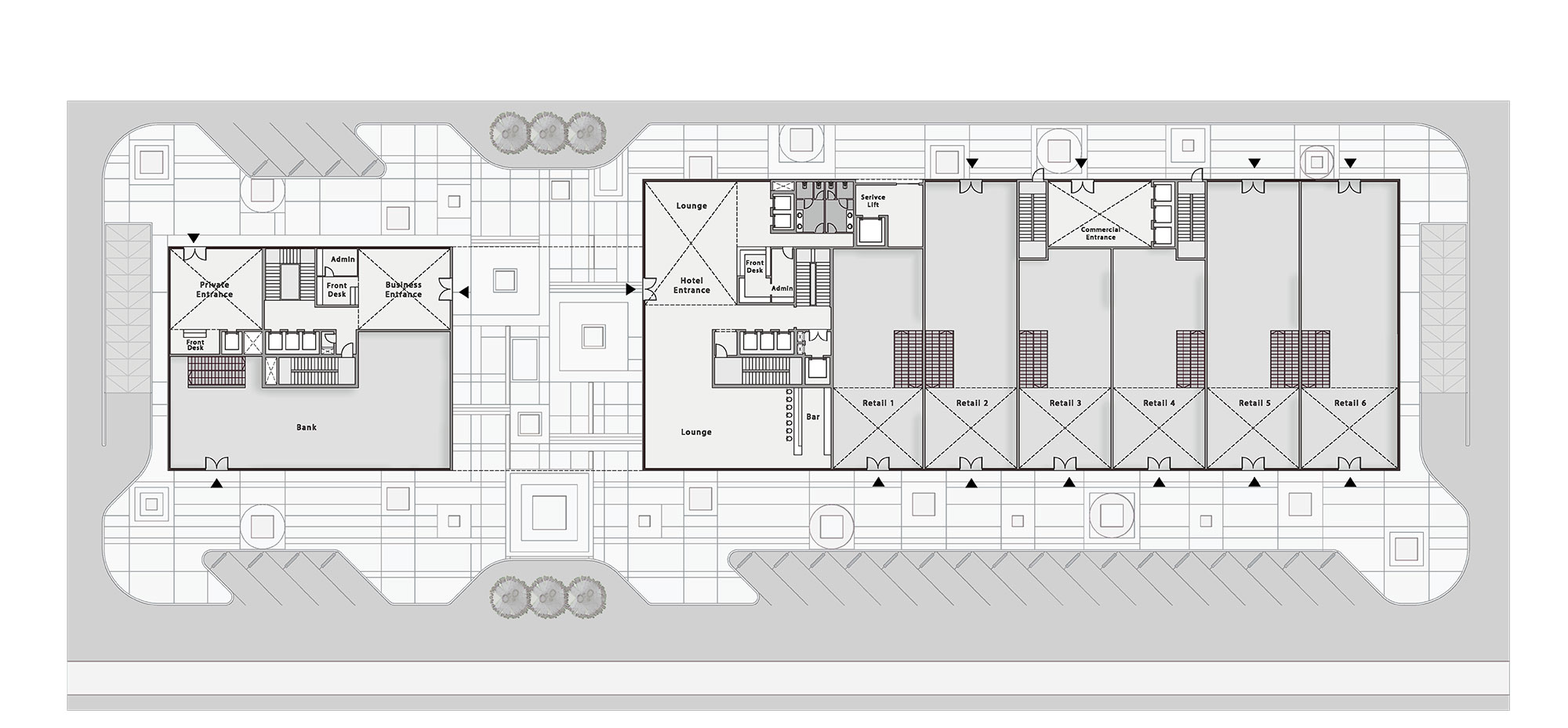
The creation of a mesmerizing tower that standout with its exterior design & facade as well as its mixed-use functions within. The Balawy Tower aims to integrate all types of users & let them endure an all-inclusive experience, starting with their own private area till public zones. Al-Balawy Tower gives the user an opportunity to escape the city within, allowing a semi connection with its surroundings.


